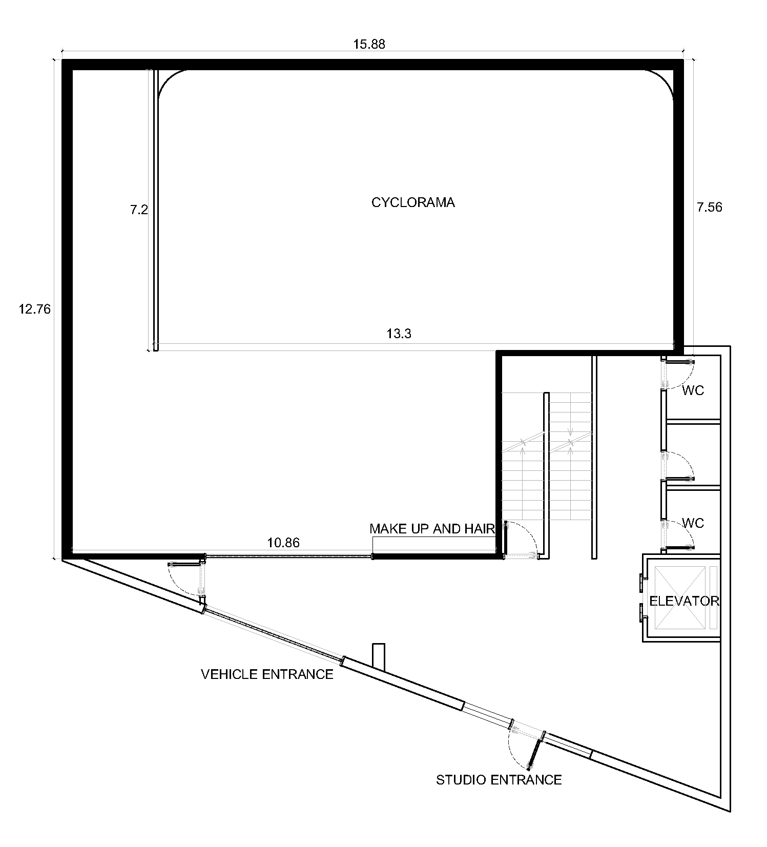
Especificaciones
| TAMAÑO | ALTURA | CICLORAMA | |||
| 182m2 | 4.6m | 96m2 | |||
| 13m×16m | 13.3m×7.2m | ||||
Instalaciones
| Efectos de lluvia, nieve, y humo | Ciclorama | |||||||
| Truss motorizado | Croma o cualquier color | |||||||
| Espacio de maquillaje | Mesas y sillas plegables | |||||||
| Parking | Mesa de catering | |||||||
Plató 1 se encuentra en la planta baja del edificio y cuenta con una superficie de 182 m². El espacio permite el acceso y aparcamiento de hasta dos furgonetas, lo que facilita la descarga directa del material dentro del plató y optimiza la logística de cada producción.
El plató está equipado con un ciclorama, que puede personalizarse en color, tanto las paredes como el suelo según las necesidades de cada cliente. Además, dispone de un sistema de lluvia que permite regular la intensidad y la densidad de las gotas, ofreciendo distintas posibilidades estéticas y sensoriales para las grabaciones.
Entre sus comodidades, el espacio incluye todas las instalaciones de maqui-pelu, incluye mesa y sillas de maquillaje, y espejos de Hollywood. Además el almacén de material está ubicado en la misma área del plató, lo que permite un acceso inmediato al equipamiento en caso de requerir su uso durante la producción.
Tarifas (IVA no incluido)
| Jornada completa | 10 horas | 650€ | ||||
| Jornada media | 5 horas | 400€ | ||||
| Hora extra | 65€ | |||||
